Архитектура Молдавии и Валахии периода раннего феодализма (X–XIII вв.)

Глава «Архитектура Молдавии и Валахии. Архитектура периода раннего феодализма (X—XIII вв.)». «Всеобщая история архитектуры. Том 3. Архитектура Восточной Европы. Средние века». Автор: Ионеску Г.; под редакцией Яралова Ю.С. (ответственный редактор), Воронина Н.Н., Максимова П.Н., Нельговского Ю.А. Москва, Стройиздат, 1966


Те княжества и воеводства, где к началу X в. появились постройки, с которых можно начать историю румынской архитектуры, не жили в период раннего феодализма своей независимой, самостоятельной жизнью. Они развивались в зависимости от соседних государств — Болгарии, Руси (Киева и Галича) и Венгрии.

Как и политико-административная организация, архитектура официальных зданий, выстроенных в это время румынскими мастерами, сохраняя, очевидно, естественную связь с местным искусством древних времён, находилась под воздействием всего того, что делалось в этой области в соседних странах, где культура и искусство были более развиты. Проведённые в последнее время археологические раскопки выявили в Трансильвании, в селении Морешти в долине Муреша, остатки крепости, треугольной в плане, окружённой земляными валами и тынами, которые датируются X—XI вв. В Добрудже были обнаружены селения X—XII вв., в которых были найдены остатки жилищ, ремесленных мастерских и фундаменты двух церквей. Одна из них, в Диноджеции, квадратная в плане (4 × 4 м), с апсидой с восточной стороны (рис. 1); другая, в Никулицел, судя по плану, была крестовокупольной. Композиционные и конструктивные особенности культовых зданий, характерные для начала румынской каменной архитектуры, полностью отражены в двух древнейших культовых постройках, сохранившихся в Трансильвании: церквах в селах Денсуш и Гура Сада в области Хунедоара.

Диноджеция. Церковь. Западный фасад и план Село Денсуш в области Хунедоара. Церковь. Общий вид с юго-востока
1. Диноджеция. Церковь. Западный фасад и план 2. Село Денсуш в области Хунедоара. Церковь. Общий вид с юго-востока
Село Денсуш. Церковь. План и разрез Село Гура Сада в области Хунедоара. Церковь. План и разрез
3. Село Денсуш. Церковь. План и разрез 4. Село Гура Сада в области Хунедоара. Церковь. План и разрез

Построенная из чередующихся рядов тесаного камня и массивных облицовочных каменных блоков, привезённых из римских руин города Сармизегетуса, церковь в Денсуше представляет собой квадратное в плане помещение, в середине которого четыре столба поддерживают высокую призматическую башню. Строение заканчивается с востока полукруглой апсидой (рис. 2). Малопринятая форма и размеры основного помещения (6 × 6 м) сходны с мартириями, строившимися христианскими мастерами в Малой Азии и Сирии между IV и VI вв. Особых указаний, по которым можно было бы установить, когда была заложена эта церковь, не сохранилось. Во всяком случае настоящий её вид не соответствует тому, который она имела первоначально. Неправильные полуцилиндрические своды боковых частей и форма башни, вокруг которой на чердаке находилось закрытое пространство, являются элементами примитивного романского зодчества (рис. 3).

Также центрическую композицию имеет церковь в Гура Сада, которая, так же как и церковь в Денсуше, подверглась позднейшим переделкам. Первоначально она состояла из одного помещения, образованного центральным квадратом, увенчанным башней, и расположенными крестообразно вокруг него двумя удлиненными и двумя полукруглыми в плане апсидами (рис. 4).

Куртя де Арджеш. Воеводский двор, XIII в. План Куртя де Арджеш. Церковь Сын Никоара, Фасад и план XIII в.
5. Куртя де Арджеш. Воеводский двор, XIII в. План 6. Куртя де Арджеш. Церковь Сын Никоара, Фасад и план XIII в.
Село Стрею в области Хунедоара. Церковь, XIII в. План и разрез Село Стрею. Церковь. Вид с севера
7. Село Стрею в области Хунедоара. Церковь, XIII в. План и разрез 8. Село Стрею. Церковь. Вид с севера

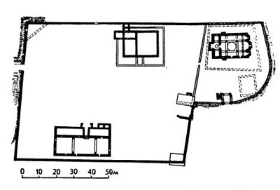
В XIII в. исторические условия способствовали развитию архитектуры в районах между Карпатами и Дунаем. Развитие феодализма в местных условиях вызвало появление построек, типичных для феодализма,— крепостей, домов воевод и церквей. Некоторое представление о румынской архитектуре в этих краях дает бывшая резиденция воевод, властвовавших на левом берегу Олта, остатки которой были выявлены археологическими раскопками в Куртя де Арджеше между 1911 и 1920 гг. В этом дворе (79 × 103 м), окруженном каменными стенами с укреплёнными воротами, сохранились подвалы домов, расположенных друг против друга (рис. 5). Оба жилища, имевшие в плане прямоугольную форму и включавшие по 3—4 комнаты с галереей, принадлежат, по существу, к традиционному типу местных домов, форма которых сохранилась в народной румынской архитектуре в течение многих веков вплоть до настоящего времени.

Среди культовых зданий этого периода нужно отметить церкви с прямоугольным планом, одной апсидой с восточной стороны и цилиндрическим сводом. Такова церковь «Сын Никоара» в городе Куртя де Арджеш, находящаяся в состоянии руин, но всё ещё дающая некоторое представление о её прежнем виде. В стенах этой церкви чередуются ряды речного камня и лицевого кирпича, и лишь верхняя часть апсиды построена исключительно из кирпича и украшена фризом из глухих ниш (рис. 6).

Но наряду с этими постройками следует также упомянуть каменные церкви, сооруженные румынскими князьями в тех районах Трансильвании, где преобладало румынское население (край Хаиега, край Бихора), в так называемых «terrae valachiсае», как их именуют латинские документы венгерских канцелярий. Задуманные в духе романского стиля, применявшегося в то время во всей Трансильвании, эти румынские церкви, из которых самая типичная — церковь в селе Стрею (область Хунедоара), построенная в первой половине XIII в. (рис. 7, 8), сохраняют простоту плана, свойственную православным культовым постройкам. Они состоят из центрального нефа с цилиндрическим сводом, небольшого помещения с апсидой для алтаря, перекрытого, как правило, крестовым сводом, и паперти под колокольней, пристроенной вплотную к западному фасаду церкви.

Добавить комментарий

CAPTCHA
Этот вопрос задается для предотвращения попыток автоматической регистрации