Ранневизантийская архитектура. Константинопольская архитектурная школа

Глава «Ранневизантийская архитектура. Константинопольская архитектурная школа». «Всеобщая история архитектуры. Том 3. Архитектура Восточной Европы. Средние века». Автор: Брунов Н.И.; под редакцией Яралова Ю.С. (ответственный редактор), Воронина Н.Н., Максимова П.Н., Нельговского Ю.А. Москва, Стройиздат, 1966


  1. Константинополь
  2. Константинополь. Большой дворец
  3. Константинополь. Церковь Сергия и Вакха
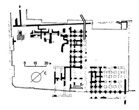
  4. Константинополь. Собор Софии
  5. Константинополь. Церковь Ирины

Константинополь сложился как город (рис. 1) в своих основных чертах ещё до последней четверти V в. Грандиозные стены и городские ворота, построенные в основном при Феодосии II в первой половине V в., завершили собой городской ансамбль (рис. 2—6). К сожалению, жилая архитектура и система городских улиц и кварталов известны нам очень мало. Только случайно в отдельных частях современного Стамбула при сооружении каких-либо крупных построек открываются фрагменты рядовой городской застройки (рис. 7, 8). Город обладал замечательной естественной гаванью — Золотым Рогом. Вход в него со стороны Мраморного моря закрывался, согласно античной традиции, цепью. Вторая, маленькая гавань специального назначения была обнаружена около центральных императорских дворцов. Через Золотой Рог были, по-видимому, уже в ранневизантийское время перекинуты мосты, но в отдалении от его устья там, где бухта была несколько уже.

План Константинополя времен Византийской империи и карта Босфора
1. План Константинополя времен Византийской империи и карта Босфора
Константинополь. Часть сухопутных стен, 1-я половина V в.
2. Константинополь. Часть сухопутных стен, 1-я половина V в.
Константинополь. Угловая башня на Мраморном море и часть прилегающих к ней стен
3. Константинополь. Угловая башня на Мраморном море и часть прилегающих к ней стен
Константинополь. Фрагмент сухопутных стен. Поперечный разрез, деталь (ворота), план
4. Константинополь. Фрагмент сухопутных стен. Поперечный разрез, деталь (ворота), план
Константинополь. Золотые ворота, 1-я половина V в.: наружный фасад, поперечный разрез, план, наружный фасад в 450 г. (реконструкция)
5. Константинополь. Золотые ворота, 1-я половина V в.: наружный фасад, поперечный разрез, план, наружный фасад в 450 г. (реконструкция)
Константинополь. Золотые ворота
6. Константинополь. Золотые ворота
Проект археологического парка в центре Стамбула, включающий сохранившиеся постройки центра Константинополя
7. Проект археологического парка в центре Стамбула, включающий сохранившиеся постройки центра Константинополя
Константинополь. Раскопанная часть жилого квартала в центре города, выходящая на улицу, V—VII вв.; план жилого дома в, квартале Фанар
8. Константинополь. Раскопанная часть жилого квартала в центре города, выходящая на улицу, V—VII вв.; план жилого дома в, квартале Фанар

Современное состояние исследований не позволяет достаточно точно отделить то новое в градостроительном отношении, что появилось в Константинополе в царствование Юстиниана I. Город, как уже сказано, складывался постепенно в позднеантичную эпоху. Однако черты нового нарастали, и ранневизантийский Константинополь в целом существенно отличался от римских городов и, в особенности, от самой столицы Западно-Римской империи. Мы можем представить себе его только в общих чертах.

В качестве опорных точек для воссоздания общей картины города мы имеем многочисленные ворота в сухопутной стене [Сухопутную часть крепостных стен Константинополя принято противопоставлять морским стенам, шедшим по берегу Мраморного моря и Золотого Рога.], через которые проходили главные дороги, соединявшие столицу с другими городами. Внутри города дороги переходили в основные улицы. Главными городскими воротами были Золотые ворота, расположенные поблизости от берега Мраморного моря. К ним подводил основной въезд в город; соответствовавшая им улица шла параллельно берегу моря. Главная улица Константинополя проходила в центре города между церковью Апостолов, стоявшей на месте современный турецкой мечети Фати, и площадью Августион около собора Софии. Она называлась Меси, т. е. Центральная улица. Система главных улиц Константинополя станет понятной, если представить себе, что улицы от ворот в сухопутной стене сходились к Меси. Последняя имела по сторонам аркады, за которыми находились галереи для пешеходов. Возможно, что в некоторых частях улицы над аркадами находились вторые этажи жилых домов.

Меси направлялась к центральному комплексу общественных зданий столицы, который состоял из Ипподрома, Большого дворца византийских императоров и собора Софии. Все эти здания выходили на большую центральную площадь Августион, которая, вероятно, была с четырёх сторон окружена аркадами. На ней стоял Миллиарий — доска, на которой были обозначены расстояния от этой точки до главных городов империи.

Основу структуры Константинополя составлял пучок сходившихся к Меси и Августиону улиц, великолепно вписанный в треугольник вдающегося в море в восточном направлении полуострова, на котором стоял город.

Общая структура Константинополя отличается от римских городов именно этим центростремительным началом, выраженным в направленности главных улиц к общественному центру. Конфигурация местности, на которой стоит Константинополь, её рельеф, фортификационная система города, характер застройки городских кварталов, сложившийся постепенно на протяжении столетий, утилитарные соображения, эстетические вкусы архитекторов и заказчиков, руководящие идеи византийской государственности — всё это слилось воедино и породило новую городскую систему, отличную от античной римской. Основную ее особенность составляет ярко выраженное начало централизации. Оно отражало одну из самых важных руководящих идей византийского государства.

Константинополь. Большой дворец, IV—VI вв.: перистиль; фрагмент карниза, образцы кладки стен (слева — более поздняя кладка)
9. Константинополь. Большой дворец, IV—VI вв.: перистиль; фрагмент карниза, образцы кладки стен (слева — более поздняя кладка)
Константинополь. Большой дворец. Части стен, открытые во время раскопок
10. Константинополь. Большой дворец. Части стен, открытые во время раскопок
Константинополь. Дворец Буколеон, V—VIII вв.: план сохранившихся частей дворца, реконструкция морского фасада после пристройки лоджии, план и разрезы маяка, реконструкция морского фасада и плана дворца
11. Константинополь. Дворец Буколеон, V—VIII вв.: план сохранившихся частей дворца, реконструкция морского фасада после пристройки лоджии, план и разрезы маяка, реконструкция морского фасада и плана дворца
Константинополь. Дворец Буколеон. Остатки морских ворот
12. Константинополь. Дворец Буколеон. Остатки морских ворот

Большой Константинопольский императорский дворец (рис. 9, 10) исследован всё ещё мало, несмотря на то, что изучение его продолжается уже несколько десятилетий. Причина этого кроется в том, что в старой Турции это место было труднодоступным. Кроме того, исследования велись только по временам в зависимости от тех или иных строительных работ, производившихся на том месте, где стоял дворец. Планомерных и систематических исследований дворца до сих пор не велось. Начало таким исследованиям было положено Русским археологическим институтом в Константинополе, но они были прерваны разразившейся первой мировой войной. Результаты проделанной работы либо погибли, либо попали в руки исследователей других стран, которые их продолжали. Несколько больше известно о примыкавшем к Большому дворцу дворце Буколеоне, который был расположен на самом берегу Мраморного моря (рис. 11 и 12).

Большой Константинопольский дворец можно представить себе только в самых общих чертах. Его описания в исторических источниках помогают лишь в небольшой степени, так как не могут дать конкретного представления об архитектурных формах и их зрительных особенностях. Основные части Большого императорского дворца, одной стороной примыкавшего к Августиону, спускались террасами по направлению к Мраморному морю, отражая рельеф местности. Из аркад дворца и с его открытых террас открывались великолепные виды на Мраморное море, малоазийские горы и видневшиеся вдали Принцевы острова. Это можно наглядно представить себе при посещении местности, на которой когда-то стоял дворец.

Дворец Региум около Константинополя, V—VI вв. План раскопанных частей и деталь плана
13. Дворец Региум около Константинополя, V—VI вв. План раскопанных частей и деталь плана
Дворец Региум около Константинополя. План главного приемного зала и смежных с ним частей дворца
14. Дворец Региум около Константинополя. План главного приемного зала и смежных с ним частей дворца
Константинополь. Базилика Студийского монастыря, 463 г.: план 1-го этажа, поперечный разрез (реконструкция), продольный разрез, детали
15. Константинополь. Базилика Студийского монастыря, 463 г.: план 1-го этажа, поперечный разрез (реконструкция), продольный разрез, детали

Раскопанные части Большого дворца византийских императоров показывают, что основные парадные дворцовые помещения группировались вокруг богато украшенных перистильных дворов, открытые части которых имели мозаичные полы с фигурными изображениями. Дошедшая до нас мозаика одного из таких дворов относится еще к середине V в. Описания Большого дворца в литературных источниках, дополненные данными археологических раскопок, говорят о том, что более поздние части дворца имели анфилады монументальных залов, похожих на боковые нефы Константинопольской Софии и чередовавшихся с большими перекрытыми куполами парадными залами, своды которых были украшены золотыми мозаиками. Некоторое представление о помещениях Большого дворца могут также дать откопанные части дворца в Региуме в окрестностях столицы (рис. 13, 14).

В V в. в Константинополе строили культовые здания ещё по преимуществу в стародавнем базиликальном типе. Преобладала разновидность базилики, характерная для Рима и других крупных городов Римской империи, с колоннами в качестве внутренних опор. В Константинополе хорошо сохранилась базилика Студийского монастыря 463 г. (рис. 15). Она свидетельствует о том, что в базиликальную композицию проникло центрическое начало: здание мало развито в длину, вместительные хоры окружали средний неф с трех сторон.

Константинополь. Церковь Сергия и Вакха, 527 г.: аксонометрический разрез, план, детали
16. Константинополь. Церковь Сергия и Вакха, 527 г.: аксонометрический разрез, план, детали
Константинополь. Церковь Сергия и Вакха. Внутренний обход и вид из внутреннего обхода на центральную часть церкви
17. Константинополь. Церковь Сергия и Вакха. Внутренний обход и вид из внутреннего обхода на центральную часть церкви

Первой крупнейшей вполне сложившейся византийской стройкой Константинополя является церковь Сергия и Вакха, хорошо сохранившаяся, хотя и несколько перестроенная (рис. 16, 17). Она была сооружена около 527 г. — года вступления на престол Юстиниана I и представляет собой одну из первых его построек. Было высказано не лишенное оснований предположение, что здание построено Анфимием и Исидором — знаменитыми зодчими Константинопольской Софии, что подтверждается сходством этих храмов. Если такая атрибуция верна, то можно проследить творческий путь обоих мастеров. Действительно, церковь Сергия и Вакха является одним из главных предшественников Софии.

Нартекс церкви представляет собой турецкую пристройку. С юга и с севера к церкви примыкали другие постройки — ещё одна церковь и дворцовые помещения. Наружная часть северной стены являет пеструю картину многочисленных, частично ещё византийских переделок. Древнейшая её форма характеризуется рядом проёмов, соединявших первоначально интерьеры церкви с помещениями дворца. Церковь Сергия и Вакха не стояла в ранневизантийское время изолированно, как в настоящее время. Она была встроена в комплекс зданий. Вероятно, только её апсида выходила в какой-то двор.

Общая система церкви Сергия и Вакха основана на центрической композиции, применявшейся в предыдущие столетия в Сирии и Малой Азии. Церковь в Эсре в Сирии (515 г.) построена на 12 лет раньше церкви Сергия и Вакха и является произведением, в котором суммированы достижения архитекторов предыдущего периода в области создания центрических построек. Она представляет собой в плане восьмиугольник, вписанный в квадрат. Переходом между ними служат угловые ниши. Восемь столбов несут купол. Они членят внутреннее пространство храма на центральную часть и окружающий ее обход. В церкви Сергия и Вакха применена та же система, но усложненная тем, что между столбами помещены поочередно прямоугольные и полуциркульные в плане экседры. Все экседры — сквозные, они отделены от внутреннего обхода тройными аркадами на двух промежуточных колоннах каждая. В зависимости от формы экседры колоннады в плане или прямые, или дугообразные. Благодаря полуциркульным экседрам центральный восьмигранник, увенчанный куполом, органичнее связан с квадратом плана.

В церкви в Эсре и в большинстве центрических сооружений до VI в. внутренний обход имеет довольно значительную ширину и благодаря этому представляет собой законченную самостоятельную часть интерьера. Общая система такого центрического здания имеет существенные точки соприкосновения с базиликой, например базиликальный разрез. В церкви Сергия и Вакха весь план имеет нерегулярный характер: восточная и западная части внутреннего обхода шире, северная и южная его части — значительно уже. Очевидно, пространство внутреннего обхода играло по сравнению с центральным пространством подчиненную роль. Нам неизвестны культовые обряды, которые происходили в церкви Сергия и Вакха. Однако надо думать, что именно пространство под куполом было главным вместилищем присутствующих. Назначение здания в качестве придворной церкви говорит о том, что в его центральной части помещались во время богослужения император с семьей и придворные (см. рис. 16 и 39).

Ранневизантийские части церкви Сергия и Вакха выложены из кирпича с немногочисленными каменными прокладками. На наружных поверхностях северной и восточной стен первоначальная кладка хорошо видна.

Внутри купол доминирует над всем остальным. Экседры имеют небольшие размеры. На фоне внутреннего обхода отчетливо выступает подкупольное пространство. Благодаря ажурности колоннад из середины интерьера хорошо видна окружающая галерея.

Первоначально преобладание купола было выражено еще более отчетливо благодаря золотой мозаике, сплошь покрывавшей его огромную внутреннюю поверхность.

Довольно мощные подкупольные столбы напоминают более ранние здания в Сирии и Малой Азии. Ряд композиционных приёмов, в том числе существовавшая мраморная облицовка, доходившая до основания сводов, несколько облегчал массу столбов. Этому способствовал также прорезной каменный карниз, проходящий на уровне капителей колонн нижнего яруса и связывающий части здания воедино.

Общая система купола на квадратном основании в конечном счете восходит к древневосточному народному жилищу.

Детали интерьера церкви Сергия и Вакха несут на себе следы античной традиции, что выражается в довольно сильной выпуклости обломов карниза и в некоторой скульптурности нижних капителей. Однако широкое применение прорезного орнамента говорит о стремлении к легкой ажурности форм.

Рядом с церковью Сергия и Вакха находился дворец Буколеон, тесно связанный с ней и с Большим дворцом. Это здание возникло на основе более ранних дворцовых корпусов, многократно расширявшихся и перестраивавшихся, в особенности при Юстиниане I. Дворец примыкал к городской стене и возвышался над ней, так что из окон и е балконов открывался великолепный вид на море. В верхнем этаже сохранившиеся остатки позволили реконструировать перекрытый куполом зал, очень близкий по плану к греческим жилым домам в квартале Фанар. Дворец имел свою пристань, частично сохранившуюся, с монументальной лестницей, которая вела в главные дворцовые помещения верхнего этажа. Недалеко от пристани находился маяк, сохранившийся доныне (рис. 11, ср. рис. 8).

Константинополь. Собор Софии, 532—537 гг., архитекторы Анфимий из Тралл и Исидор из Милета. Продольный разрез и план
18. Константинополь. Собор Софии, 532—537 гг., архитекторы Анфимий из Тралл и Исидор из Милета. Продольный разрез и план
Константинополь. Собор Софии: а — реконструкция первоначального купола (разрез); б — поперечный разрез; в — продольные разрезы южного бокового нефа с видом на юг (по нижнему ярусу и на уровне хор); г — план на уровне хор; д — разрез северо-западного пандуса, ведущего на хоры; е — детали
19. Константинополь. Собор Софии: а — реконструкция первоначального купола (разрез); б — поперечный разрез; в — продольные разрезы южного бокового нефа с видом на юг (по нижнему ярусу и на уровне хор); г — план на уровне хор; д — разрез северо-западного пандуса, ведущего на хоры; е — детали
Константинополь. Собор Софии. Вид с востока и вид с юга
20. Константинополь. Собор Софии. Вид с востока и вид с юга

Собор Софии в Константинополе (рис. 18—25) — наиболее грандиозное и самое выдающееся произведение византийского зодчества — является одним из значительнейших памятников мировой архитектуры.

Константинопольской Софии посвящена большая литература. Однако изучение ее архитектуры далеко не всегда шло правильными путями. Некоторые исследования уводят нас в сторону от понимания общечеловеческой ценности Софии.

Обычно Софию механически ставят в ряд с ее «прототипами», т. е. с более ранними памятниками, имеющими с ней некоторое внешнее сходство. При этом не учитываются ни масштаб Софии, которую приравнивают к небольшим постройкам, ни, в особенности, высокое архитектурное качество константинопольского собора. С ним сравнивают как явление одного порядка незначительные сооружения только потому, что в них также имеются, например, купол с примыкающим к нему полукуполом или сочетание купола с базиликой и т. д. Нередко помещают рядом планы Софии и других построек, сведённые к одному размеру. Вследствие этого создается ошибочное впечатление, что София является звеном эволюционного ряда, механически образовавшимся из подобных «предшественников». Последние, несомненно, должны быть учтены при рассмотрении архитектуры Софии. Однако нельзя игнорировать существующего различия в архитектурном качестве, в масштабе и, в особенности, в назначении построек. Нельзя игнорировать архитектурное единство самой Софии — замечательнейшего произведения мирового зодчества.

Другая ошибочная точка зрения заключается в том, что некоторые исследователи, увлеченные археологическими изысканиями и археологическими методами работы, утверждают, будто София в Константинополе представляет собой только некий конгломерат, образовавшийся постепенно на протяжении ряда столетий в результате добавления новых частей к уже существовавшим ранее и постепенных многочисленных переделок этих частей разными поколениями зодчих в различные эпохи. Открывая в сохранившейся Софии следы переделок и более старых построек, включенных в дошедшее до нас здание, эти исследователи приходят к выводу, что Софии как единого произведения архитектуры ранневизантийского периода, построенного при Юстиниане I, собственно говоря, вовсе даже и не существует. Представление о ней как о произведении якобы VI в. согласно этой теории порождено недостаточной исследованностью памятника, незнанием его истории, которую все больше и больше вскрывают современные архитектурно-археологические изыскания. Величайшее произведение архитектуры прошлого как бы растаяло на глазах у археологов и заменилось представлением о последовательном наслоении отдельных особенностей, в целом образующих мозаичную картину, создающую иллюзию Софии.

История возникновения столь выдающегося произведения архитектуры, как София, должна, конечно, быть учтена всяким, кто занимается ее архитектурой. Однако это не значит, что в исторической смене строительных периодов не было одного решающего этапа строительства, создавшего целостное произведение архитектуры. Этим периодом в действительности было ранневизантийское время, точнее — строительство Софии в 532—537 гг. Если бы этого строительного периода не было, не было бы Софии как самого выдающегося произведения византийской архитектуры и замечательного памятника мирового зодчества. Его не разрушили и в основном не изменили переделки, имевшие место в последующие времена.

Именно на собор Софии в Константинополе 532—537 гг. следует обратить главное внимание при изучении византийского зодчества. Необходимо постараться проанализировать его по возможности разносторонне и углубленно.

Строители Константинопольской Софии — Анфимий из Тралл и Исидор из Милета были выдающимися инженерами и архитекторами. Их нельзя представить себе иначе, как очень развитыми, высокообразованными людьми, владевшими всей суммой знаний, доступной той эпохе, когда они жили. Это не были простые, хотя бы и очень квалифицированные, ремесленники, которые продолжали возводить здания по традиции, выполняя заветы старших мастеров и не смея вводить новшеств. Оба они имели очень широкий как архитектурный, так и общий кругозор. Это позволяло им свободно выбирать в прошлом то, что могло пригодиться при выполнении величайшего здания современности.

Собор Софии является прежде всего памятником своей эпохи, обладавшим необыкновенной силой воздействия не только на современников и на ближайшие к ним поколения, но и на людей последующих столетий и даже последующего тысячелетия.

Собор Софии в Константинополе относится к тем произведениям архитектуры, которые глубоко связаны с прошлым, в которых учтены все основные достижения архитектуры предшествующих эпох, но в которых доминирует новое. Новое назначение, новые конструктивные приемы и новые архитектурно-художественные особенности настолько преобладают в Софии, что именно они выступают на первый план, отодвигая традиционное и заслоняя его собой. Изучая Константинопольскую Софию, забываешь, что она представляет собой синтетическое сочетание элементов, имеющих в прошлом свою длинную историю, настолько значительным является новаторство ее авторов, наложившее неизгладимый отпечаток на облик этого гениального сооружения.

Константинополь. Собор Софии. Центральный неф. Вид с востока на запад. Гравюра Фоссати
21. Константинополь. Собор Софии. Центральный неф. Вид с востока на запад. Гравюра Фоссати
Константинополь. Собор Софии. Нартекс, вид с юга на север
22. Константинополь. Собор Софии. Нартекс, вид с юга на север
Константинополь. Собор Софии. Часть колоннады нижнего яруса на северной стороне центрального нефа
23. Константинополь. Собор Софии. Часть колоннады нижнего яруса на северной стороне центрального нефа
Константинополь. Собор Софии. Вид из северного нефа на центральную часть и южный неф. Гравюра Фоссати
24. Константинополь. Собор Софии. Вид из северного нефа на центральную часть и южный неф. Гравюра Фоссати
Константинополь. Собор Софии, 532—537 гг. Интерьер центрального нефа
Константинополь. Собор Софии, 532—537 гг. Интерьер центрального нефа
Константинополь. Собор Софии. Вид из северного нефа на центральную часть
25. Константинополь. Собор Софии. Вид из северного нефа на центральную часть

Константинопольская София была главным зданием всей Византийской империи. Она была церковью при общественном центре столицы и патриаршим храмом. Вследствие того, что в Византии религия играла огромную роль в жизни государства, София была главным общественным зданием империи. Это выдающееся значение Софии было очень наглядно выражено в выборе места для нее и в самой постановке ее среди господствующих зданий византийской столицы. Главные улицы города сходились от нескольких городских ворот в сухопутной стене к центральной улице (Меси). Последняя завершалась площадью Августион, на которую выходили Ипподром, София и Большой дворец византийских императоров. Весь этот комплекс общественных зданий, среди которых господствовала София, был конечной целью движения по городским улицам, противоположный конец которых разветвлялся в основные дороги европейской части империи. Августион и примыкающие к нему важнейшие постройки занимали вершину треугольника, на котором находился Константинополь, расположенный на оконечности европейского материка, выдвинутой в сторону Азии. Это было место пересечения двух основных торговых путей античности и средних веков: западно-восточного сухопутного пути, соединявшего Европу с Азией, и северо-южного морского пути, который наши предки называли путем «из варяг в греки» и который связывал Скандинавию со Средиземным морем. София была наиболее крупным, компактным и массивным архитектурным сооружением не только на Августионе, но и во всей столице. Ею было отмечено место, которое действительно можно было бы назвать центром мира в ранневизантийское время.

Мы сейчас не можем достаточно подробно и точно представить себе первоначальное архитектурное окружение Софии. Однако известно, что она не стояла изолированно, а была окружена множеством разнообразных зданий и дворов. Её нельзя было непосредственно обойти кругом. Видная только из примыкавших « ней дворов и улиц, она возвышалась над соседними сооружениями или над колоннадами перистильных дворов и площадей. Наружный облик Софии в ранневизантийское время можно представить себе в общих чертах, если мысленно восстановить ее атриум, форма которого известна: как из атриума, так же примерно София была видна и с других сторон. Один только ее восточный фасад был открыт целиком: апсида была видна доверху без других зданий, портика или колоннады на первом плане, которые пересекали бы её нижние части. Такое расположение в ансамбле придавало особенно большое архитектурное значение венчающим частям здания. Именно они были видны над другими постройками при приближении к Софии; издали они увенчивали собой центр столицы и даже архитектурный ансамбль всего Константинополя.

Наружный облик Софии много раз так сильно переделывался, что в настоящее время очень трудно восстановить его хотя бы мысленно. Большая раздробленность наружного объема здания в значительной степени объясняется именно этими переделками и искажениями. Однако и в настоящее время вырисовываются центральный купол и два примыкающих к нему полукупола. Первоначально, до более поздних византийских Переделок, эта нарастающая к центру объемная система полукуполов и купола была выполнена еще более отчетливо. Она была хорошо видна при приближении к городу как с юга, со стороны Мраморного моря, так и с севера, из Босфора. Она великолепно замыкала собой архитектурный объём здания и возвышалась над рядом больших закомар, которыми завершены наружные стены собора со всех четырёх сторон. Закомары обобщали очертания окружающих жилых домов, многие из которых, как можно предположить, сами имели закомары.

В основе нового типологического решения собора Софии, найденного Анфимием и Исидором, лежали требования быта, которые были отражены в организации его плана. София представляла собой здание, в котором широкие народные массы, стекавшиеся в собор с улиц и площадей столицы, встречались с высшей аристократией и чиновничеством империи во главе с императором и патриархом, выходившими из соседнего Большого дворца. Эти встречи сопровождались сложными церемониями полуцерковного-полусветского характера, назначение которых состояло в том, чтобы всемерно укреплять власть и авторитет царя и правительства путём наглядного показа божественного покровительства василевсу. Средством для этого служил подробно разработанный церемониал, носивший театрализованный характер. Последовательность действий должна была в символической форме изображать историю мира, как она трактована в церковной легенде, изложенной в священном писании. Условные движения и действия производились в строго регламентированном порядке многочисленными священнослужителями различных рангов во главе с патриархом и императором. Они были одеты в богатейшие одежды из красиво подобранных ценных тканей. Посредством торжественных шествий и строго зафиксированных возгласов и песнопений изображались наиболее существенные моменты истории человечества, которые концентрировались вокруг истории Христа.

Для того чтобы осуществлять подобные культовые действия, необходимо было создать сооружение, обладающее большим свободным центральным пространством для церемоний и вмещающее просторные окружающие его помещения для огромного числа зрителей. В центре должна была находиться кафедра-амвон — место средоточия церемоний, изображающее по ходу действия то пещеру, где, согласно легенде, родился Христос, то гору, на которой он был распят, то разные помещения, где происходила та или иная сцена. Центральная часть здания должна была иметь придаток в виде алтаря, изображавшего небесное царство, в то время как она сама представляла землю, на которой происходили изображаемые события. Между землей и небом осуществлялось постоянное общение, однако алтарь должен был быть отделен от зрителей невысокой преградой, скрывавшей небесный мир. Присутствующие могли заглянуть в него лишь тогда, когда открывались врата преграды, что происходило в процессе действия только временами. Перед главным помещением должна была находиться более закрытая часть интерьера, в которой участники процессий могли собираться перед выходом в главное помещение.

Эта программа легла в основу проектирования здания Софии в Константинополе. Отдельные элементы ее существовали уже раньше. Однако в целом она приняла окончательную форму только при проектировании нового грандиозного главного церковного здания Византийской империи.

Аналогичные функциональные требования, возникшие в менее развитой форме еще в предшествующий период, породили архитектурный тип купольной базилики, который был выбран для главного храма Византийской империи также и Анфимием и Исидором. Однако колоссальные размеры Софии, особая многолюдность общественных сборищ, которые имели в ней место, а также своеобразие происходивших в ней культовых действий — все это заставило архитекторов Софии заново продумать самый архитектурный тип купольной базилики и по-новому его организовать с учетом римского архитектурного опыта, хорошо им известного.

Анфимий и Исидор, оба родом из Малой Азии, положили в основу своей постройки малоазийский тип купольной базилики. Последний представлял собой базилику, центральная часть которой была перекрыта куполом. Этим в здание было внесено начало центричности, вследствие чего базилика сильно укоротилась, как бы подтянувшись к куполу. Такова, например, купольная базилика в Мериамлике. Такая купольная базилика содержала в себе основные помещения, необходимые для византийского культа VI в. В ней имеется главное центральное помещение, к которому примыкают алтарная часть, двухъярусные галереи для зрителей и нартекс.

Возникает вопрос об основном отличии подобных купольных базилик — предшественниц Софии — от древнехристианских базилик Рима — этих первых наземных культовых зданий христиан в западной столице империи после официального признания новой религии. Отличие заключается в прибавлении купола. В древнехристианской базилике все было направлено к алтарю, который являлся основным, единственным центром интерьера. В купольной базилике, наряду с алтарем, возникает второй центр под куполом. Это свидетельствует о глубоком изменении самой концепции церковного здания, обусловленном изменением системы культа и религиозной идеологии. Во времена возникновения купольной базилики внимание присутствовавших в храме уже не было так всецело поглощено алтарем, как это было в первые времена официально признанного христианства в Риме. Причиной явилось развитие театрализованного культа с амвоном в качестве его внешнего средоточия. В этом заключалась основная предпосылка появления купола над серединой главного нефа.

При дальнейшем развитии купольной базилики купол не вытеснил алтарную апсиду. Однако постепенно главным видимым центром интерьера становился купол. Внесённое им центрическое начало усиливалось все больше и больше. Базилика укоротилась и подтянулась к куполу. В результате основной архитектурный акцент был перенесен с апсиды на купол, и здание из базилики превратилось в центрическое сооружение. Это стало возможным к тому времени, когда простое обращение к божеству, мыслимому в алтаре, заменилось сложным театрализованным культом.

Основная трудность, которая стояла перед архитекторами при проектировании Софии, заключалась в том, что существовавшие в византийском мире купольные базилики обладали все очень скромными размерами, в то время как София должна была стать грандиозным сооружением. Необходимо было опираться на другие образцы, более подходившие по своим масштабам к задуманному храму, чем купольные базилики Малой Азии. Другая трудность, чисто конструктивная, состояла в том, что деревянное перекрытие не подходило для интерьера диаметром более 30 м. Такое перекрытие представляло также опасность в отношении пожара, от которого только что во время народного восстания сгорел предшественник сооружаемого здания. Купол было необходимо сделать каменным и по соображениям идейно-художественного порядка. Он должен был изображать небесный свод, увенчивающий землю — центральную часть интерьера. Все здание внутри должно было выглядеть однородным, оно все должно было быть каменным от основания до замков сводов.

Сводчатые здания очень больших размеров были хорошо известны Анфимию и Исидору в Риме. По-видимому, их зодчие и взяли за образец, выбрав при этом наиболее грандиозные и замечательные постройки.

Термы не подходили вследствие совершенно иного назначения. Замыслам зодчих гораздо больше соответствовали самая грандиозная римская базилика, при этом сводчатая, и наиболее выдающееся купольное здание, причем оказалось возможным соединить воедино особенности этих двух сооружений. Этими двумя постройками были базилика Максенция и Пантеон. Если бы в настоящее время архитектору предложили назвать два наиболее выдающихся римских здания, он не мог бы выбрать лучше. Базилика Максенция особенно подходила, так как она представляет собой короткую базилику. Этот выбор говорит о том, что Анфимий и Исидор отдавали себе отчет в родстве языческой и древнехристианской базилик.

Когда Браманте проектировал собор Петра в Риме, он сказал, что поставит купол Пантеона на базилику Максенция (которую он ошибочно считал храмом Мира). Браманте знал Софию в Константинополе по зарисовкам путешественников. Он решил поставленную перед ним задачу в принципе так же, как Анфимий и Исидор.

План Софии отчетливо свидетельствует о том, что именно базилика Максенция была положена в основу ее системы. План расчленен четырьмя промежуточными столбами на девять частей, так что центральный неф стал трёхчастным. Конструктивная система здания — каркасная. В обеих постройках тонкие стены являются только легким заполнением между столбами и прорезаны в каждом звене двумя расположенными друг над другом группами окон (по три окна каждая).

От купольных базилик зодчие Софии заимствовали хоры, которые позволяли им намного( увеличить вместимость боковых нефов, предназначенных для зрителей. Однако колоннады, отделяющие боковые нефы собора от среднего нефа, повторяют колоннады древнехристианских базилик, которые тоже иногда устраивали с хорами. Это говорит о том, что Анфимий и Исидор изучали в Риме также и древнехристианские базилики. К ним восходит и атриум Константинопольской Софии.

Наиболее выдающимся архитектурным достижением двух строителей Софии является приём, при помощи которого они связали воедино в своем произведении базилику Максенция и купол Пантеона. Этот приём относится к наиболее смелым и вместе с тем к наиболее удачным идеям в архитектуре прошлого. Это гениальное решение охватило одновременно функциональную, конструктивную и художественную стороны архитектуры. Оно привело к удивительно полноценному комплексному архитектурному образу.

Анфимий и Исидор изобрели систему полукуполов, связывающую купол Софии с её базиликальной основой. В эту систему входят два больших полукупола и пять малых. В принципе должно было быть шесть малых полукуполов, но один из них был заменен цилиндрическим сводом над главным входом в центральную часть интерьера из нартекса. Это отступление от общей системы великолепно выделяло главный входной портал и два меньших портала по его сторонам. Через эти порталы из нартекса входили процессии, через главный портал проходили император и патриарх. Полукупола прекрасно связали базилику и купол. Этим была создана купольная базилика совершенно нового типа, единственной представительницей которого является Константинопольская София.

Полукупола Софии тоже имели своих предшественников. По-видимому, эта идея возникла у наших двух мастеров под влиянием целой группы построек с планом в виде четырёхлистника, к которой относятся церковь в Селевкии Пиерии около Антиохии, церковь в Стое Адриана в Афинах, Сан Лоренцо в Милане, церковь в Перушице и др. Возможно, что Сан Лоренцо в Милане был им хорошо известен. Однако сравнение этих построек с Софией особенно наглядно выявляет самостоятельность применения полукуполов в Софии. В частности, композиционный приём, примененный Анфимием и Исидором, фиксирует расположение купола в самом центре здания. В купольных базиликах предшествующего времени расположение купола постоянно колебалось в связи с возможностью удлинить или укоротить цилиндрические своды, находящиеся к западу и к востоку от купола. Обычно алтарь всё-таки притягивал к себе купол.

В Софии полукупола создают к востоку и к западу от купола аналогичные формы, имеющие одинаковую глубину. Благодаря этому купол не может Сыть сдвинут со своего места и уверенно отмечает центр интерьера. Одновременно с этим конха апсиды включена в систему полукуполов. Это означает, что алтарная часть закономерно привязана к куполу и к главной части интерьера. Так создана архитектурная система, узаконившая оба центра Софии — купол и апсиду, амвон и алтарь. Вследствие этого система полукуполов великолепно связала направленность к алтарю базилики и центричность купольной постройки. В Софии базилика и купол внутренне органически связаны друг с другом. Это действительно настоящая купольная базилика, увенчание всего развития этого архитектурного типа.

Не менее значительную роль полукупола Софии сыграли и в отношении архитектурно-конструктивном. Огромный купол Софии создает очень сильный распор. В южном и северном направлениях распор погашается мощными столбами, по два с каждой стороны, несущими вместе с подкупольными столбами арки и своды, перекрывающие боковые нефы. Эти внутренние контрфорсы несут верхние арки под кровлями боковых нефов. Вся эта система была усилена после падения первоначального купола, случившегося еще в VI в. в результате землетрясения. Своды боковых нефов, расположенные в двух ярусах, участвуют в погашении распора купола в направлении на юг и на север. В восточном и западном направлениях распор погашается полукуполами. Выдающееся значение такого решения заключается в том, что полукупола выполняют свою конструктивную роль, не загромождая интерьера главной части и не нарушая его целостности.

Замечательно и художественное значение системы купола и полукуполов Софии. Эта система одновременно решает целый комплекс художественных проблем, органически переплетающихся с вопросами функциональной организации пространства и задачами конструктивного порядка. Эти проблемы лежат в разных планах и имеют множество различных аспектов.

Полукупола образуют все вместе геометрическую фигуру, приближающуюся к овалу. Именно этим они создают промежуточное связующее звено между базиликой и центрическим зданием. В принципе образованы три вписанных друг в друга фигуры, постепенно переходящие одна в другую: прямоугольник основного очертания плана, овал полукуполов и окружность купола. Овал служит переходом от прямоугольника к окружности.

В конкретном пространственном выражении эта схема принимает особенно законченную и органическую форму. Полукупола продолжают ритм нарастания пространства интерьера от боковых нефов к центральному. По мере развития полукуполов в направлении купола пространство нарастает вплоть до кульминационной точки в центре. В обратную сторону центральное пространство под куполом постепенно ниспадает в обе стороны и сменяется далее пространством боковых нефов.

Сравнение Софии и Пантеона вскрывает коренное отличие между ними в трактовке купола. В Пантеоне подкупольное пространство статично, это замкнутый и огромный в своей компактности кусок пространства, твердо очерченный стенами и куполом. В Софии центральное пространство интерьера легко, воздушно и динамично Ажурные колоннады связывают его со всеми окружающими соседними помещениями. Пространство со всех сторон нарастает по направлению к венчающему куполу. Самый купол возникает и как бы строится во времени на глазах у зрителя; он постепенно развивается из полукуполов. Последние охватывают собой только часть интерьера, в то время как купол замыкает сверху интерьер весь в целом.

Средний неф Софии представляет собой крупную часть интерьера. Однако сам он не распадается на части. Полукупола только подразделяют его, сохраняя целостность его пространства и как бы только его растягивая. Когда идешь по нему, создается иллюзия, что колоннады под куполами расступаются и уходят вглубь. Вогнутые большие ниши обступают подкупольную часть. Вместе с тем боковые двухъярусные колоннады направляют входящего вперед и выделяют продольную западно-восточную ось интерьера, ориентированную на апсиду.

Система купола и полукуполов Софии служит ключом к пониманию ее архитектуры.

Константинопольская София, несмотря на то, что она в последнее время превращена в музей, далеко еще не достаточно исследована с точки зрения ее архитектуры. Особенно слабо изучены строительные материалы, из которых она выложена, и конструктивные приёмы, которые были применены при ее сооружении.

Основным строительным материалом для стен является кирпич на цемяночном растворе, слои которого равны по толщине кирпичным плиткам. Только в наиболее ответственных местах были обнаружены прокладки из одного ряда тесаного камня. Четыре подкупольных столба выложены особенно тщательно из отесанных блоков крепкого известняка. В нижних частях столбов между блоками имеются тонкие швы раствора. В их частях между каменными блоками пропущены в особо ответственных местах прокладки из свинца. Эти прокладки, отмеченные у византийских писателей, были за последнее время найдены в самой постройке. Подкупольные арки сложены из кирпичей очень крупного размера. Плоские плитки его имеют квадратную форму со стороной, близкой в 70 см. Купол выложен из кирпича на толстых слоях цемяночного раствора. Применение в наиболее ответственных в конструктивном отношении частях здания кирпича очень больших размеров свидетельствует о влиянии античных римских построек и говорит о том, что Анфимий и Исидор изучали их очень основательно.

Многие исследователи отмечают несовершенство конструктивного решения Софии и указывают на недостатки, допущенные во время проектирования и строительства. Некоторые из них решаются «исправить» эти ошибки и предлагают свои проекты Софии с измененными подкупольными столбами и другими формами. Эта критика конструктивного решения Софии была вызвана главным образом тем, что ее купол и часть арок и сводов неоднократно падали и восстанавливались в византийское время. Архитекторы Софии не владели, конечно, современными научными методами расчетов конструкций. Необходимо согласиться с тем, что с точки зрения этих точных методов конструктивное решение Софии имеет слабые места. Тем более удивительно, что здание, хотя и реставрировавшееся несколько раз, все же стоит целым до настоящих дней и сохранило в основных чертах облик времени Юстиниана I. Современные исследователи недостаточно учитывают, что София была повреждена главным образом при землетрясениях, которые достигают в Константинополе большой силы. Что же касается изменений, предлагаемых для усовершенствования конструктивной стороны здания, то необходимо помнить, что такие изменения равносильны искажению архитектуры Софии, в своем роде совершенной.

Функциональная основа Софии Константинопольской предопределяет многие существеннейшие стороны ее художественной композиции. Для того чтобы достаточно полно представить себе интерьер собора в действии, необходимо хотя бы в общих чертах воспроизвести в своем воображении стоявший под куполом амвон и алтарную преграду, отделявшую алтарь. Амвон был очень крупным сооружением. Он представлял собой род кафедры, увенчанной шатром и богато украшенной драгоценными материалами. Шатер возвышался над уровнем хор. Алтарная преграда в настоящее время довольно точно теоретически восстановлена на основании исследования самого здания. Она представляла собой колоннаду, несколько выступавшую под большой восточный полукупол.

Было бы неверным утверждать, что во время богослужения вход из боковых нефов в центральную часть интерьера был присутствующим запрещен. Однако колоннады все же служили преградой. Они отражали в плане архитектурной композиции границу между частью интерьера, предназначенной для активных участников церемоний — священнослужителей во главе с патриархом и императора с его свитой, и частью его, отведенной для пассивных зрителей. присутствовавших при культовых действиях. Нартекс, средняя часть которого отделялась от боковых частей занавесками из драгоценных материй, служил для входивших в оба яруса боковых нефов преддверием храма, а для главных участников процессий его отгороженная часть была местом, где они готовились появиться в центральном помещении перед собравшимися. Это отразилось на размерах порталов. которые ведут из нартекса в храм: три средних портала выше Шести боковых. На хоры проходили из нартекса по особым лестницам. В настоящее время невозможно точно сказать, какие разряды присутствующих находились в отдельных частях боковых нефов и двух их ярусах. В источниках имеются только упоминания о тех или иных местах, резервированных для императора, для императрицы, для той или иной категории придворных и т. д. Можно лишь с уверенностью утверждать, что старое представление, будто хоры были предназначены для женщин, не точно, так как на хорах находились и мужчины.

Огромное центральное пространство Софии и гораздо более низкие и тесные, разделенные на два яруса боковые нефы скомпонованы по-разному и контрастируют друг с другом. Вместе с тем они дополняют друг друга и, сочетаясь, образуют единый архитектурный образ Софии Константинопольской.

Предназначенные для зрителей боковые нефы похожи на дворцовые залы. Как показывают исследования Большого константинопольского дворца, это сходство действительно имело место и, переходя из дворца в Софию, знатные зрители видели перед собой как бы продолжение анфилад дворцовых залов.

Перекрытые рядом крестовых сводов, боковые нефы несколько напоминают обширные залы римских терм. Сходство распространяется также на множество колонн, придвинутых к стенам и принимающих на себя тяжесть сводов. Однако в Софии колонны гораздо дальше отставлены от стен, и своды на самом деле на них опираются. Колонны подразделяют интерьер и усложняют его.

Композиция архитектурного пространства боковых нефов сильно отличается от интерьеров терм. Ее характерную особенность составляет система поперечных перегородок, весьма усложняющих интерьер и представляющих собой опоры для глаза, по которым читается форма и характер пространства. Очень характерно в боковых нефах взаимоотношение конструктивной системы здания и его художественного облика. Основу конструкции составляют мощные столбы — подкупольные и соответствующие им столбы, между которыми помещены наружные стены здания. Перед архитектором открывались две возможности интерпретации этих столбов: либо он мог их всемерно подчеркнуть в художественной композиции и этим выявить их действительное значение, либо он мог их замаскировать.

Столбы противоречат основной тенденции к воздушности и пространственности архитектурных форм, которая составляет характернейшую черту архитектуры Софии, наглядно выражающую сущность византийской религиозной идеологии. Столбы противоречат основному характеру архитектуры Софии. Архитекторы должны были их замаскировать. Они сделали это очень тонко. Все столбы имеют со стороны боковых нефов каждый по паре приставленных к ним узких столбиков. На последние опираются арки, незначительная толщина которых равна толщине столбиков. Поверхность больших столбов между каждыми двумя приставленными к ним столбиками не видна при движении по нефу: она отодвинута вглубь и затемнена. Лицевые поверхности столбиков расположены на одном уровне с боковыми плоскостями массивных столбов, которые они собой маскируют. Мраморная облицовка окончательно стирает границу между ними.

В итоге при входе в боковой неф из нартекса и при дальнейшем движении вдоль него наружные стены остаются невидимыми, так как они прикрыты поперечными стенками, по две на местах каждой пары столбов. Четыре такие стенки перерезают неф поперек и образуют эффектную перспективу анфилады арочных проёмов, очень легких, так как стенки, прорезанные арками, тонки и представляют собой облегчённые перегородки, подобные тонким наружным стенам Софии.

Колонны, несущие крестовые своды нефов, образуют дополнительные поперечные подразделения пространства нефа. В эту систему включены также западная и восточная наружные стены нефа, тоже тонкие и прорезанные проёмами. Эти стены только условно замыкают перспективу, так как в интерьере живо ощущается связь с наружным пространством. Они подобны опущенным занавесам.

Каждый боковой неф Софии воспринимается как несколько неясное в своих границах и размерах живописное пространство, уходящее вправо и влево между поперечными членениями в неопределенную даль. Ведь поперечные стенки с арками прикрывают собой не только наружные стены, но и колоннады среднего нефа. Они со всех точек больше или меньше прикрывают друг друга. По мере движения вдоль нефа поперечные стенки и колонны образуют самые различные сочетания, видные в различных ракурсах и в многообразных взаимных пересечениях. Когда открываются более значительные куски наружных стен, выступает их ажурный характер. Внизу они плотнее, так как прорезаны только тремя большими окнами в каждом подразделении стены. Над этими окнами открывается сплошное застекление под полуциркульной кривой свода, так что свет свободно вливается в интерьер. На противоположной стороне нефа этому соответствуют колоннады, открывающиеся в средний неф.

Общую живописность боковых нефов усиливают мраморная облицовка, поднимающаяся до основания сводов и огражденная сверху мраморным прорезным карнизом, а также золото мозаик, покрывающих своды. Замечательная композиция светотени достигается в боковых нефах тончайшей нюансировкой сильнее и слабее освещенных частей интерьера. Благодаря сильной расчлененности пространства и многочисленным поперечным стенкам, различные части помещений освещены по-разному. Степень же освещенности глубоко продумана и точно взвешена мастерами.

По отношению к подобным композициям один исследователь удачно применил термин «световой орган»: он уподобил музыке гармоническую композицию оттенков света и тени в архитектуре. С этим сочетаются эффекты цвета. Мраморные плиты об лицовки стен и мрамор колонн тонко подобраны. Господствуют бледно-розовые и дополняющие их бледно-зеленые оттенки. В целом образуется единый нежный тон. Светотень прорезных карнизов и лёгкие орнаментальные цветные обрамления золотых мозаичных поверхностей дополняют общий эффект, глубоко продуманный и необыкновенно гармоничный.

Благодаря сравнительно небольшой высоте боковых нефов их размеры хорошо связаны с высотой человека. Колоннам, несущим своды, присуще до известной степени ордерное начало, унаследованное от античности. Они выступают вперед и играют роль связующего элемента между фигурой человека и пространством интерьера. Опираясь на колонны, глаз читает архитектурную композицию в целом.

На иных композиционных принципах основана структура центрального нефа. Интерьер главной части Софии имеет гигантские размеры и отчетливо очерченную пространственную форму. Пространство главного помещения Софии четко ограничено строгим линейным костяком и прямыми и вогнутыми поверхностями. Основная структура просто и ясно обозначена вертикальными линиями, переходящими в линии арок и окружность купольного кольца. Павел Силенциарий, современник Юстиниана I, образно говорит, что купол Софии выглядит парящим в воздухе, как будто он подвешен на цепи к небу.

Приглядимся в отдельности к подкупольным столбам и аркам. Столбов не видно. Они замаскированы, и видны только вертикальные линии, образованные уступами боковых колоннад, которые чуть отступают вглубь по отношению к стенам больших экседр, перекрытых полукуполами. Полукупола не имеют подпружных арок, а простенки на углах под парусами являются частью полуциркульных в плане стен больших экседр. От этих стен остались только узкие простенки, так как они прорезаны малыми экседрами. Стенки, которыми закрыты большие арочные проемы с севера и с юга, находятся в тех же плоскостях, что и колоннады под ними. Поэтому уступы в местах примыкания колоннад и больших экседр продолжаются выше линиями, лишь зрительно намечающими очертания арок. Аналогичным образом построены очертания малых полукуполов, вырастающих из вертикальных линий пересечения больших и малых экседр. В этих местах создана как бы иллюзия столбов. На самом деле — это отрезки криволинейных в плане стен больших экседр. Художественный облик интерьера Софии отвлечен от действительной конструктивной системы здания и как бы наложен в пространстве на эту систему. В этом смысле он отражает реальные архитектурные формы, но в схематизированном и отвлеченном виде. В центральном нефе Софии в линейной схеме выражена как бы абстрактная идея действительного каркаса постройки. Этот идеальный линейный каркас представляет собой композиционную основу среднего нефа. Обводя его глазами, охватываешь при его посредстве пространство интерьера. Однако было бы ошибочным трактовать стены внутри среднего нефа только как некое, хотя бы тоже идеальное, заполнение основного линейного каркаса. Ведь самый этот каркас представляет собой не более как границы стен или грани на местах их пересечения с другими стенами. Внутренние стены среднего нефа своими огромными плоскостями ограничивают пространство интерьера и придают ему форму.

Стены, отделяющие средний неф от окружающих его помещений, представляют собой, как и стены боковых нефов, тонкие перегородки. Прорезанные сплошными аркадами, они даже еще более ажурны. Шесть колонн меньшего размера поставлены на хорах с каждой стороны над четырьмя более крупными колоннами нижнего яруса. Вследствие этого оси колонн в обоих ярусах не совпадают. Если бы они совпали, то каждая двухъярусная колоннада представляла бы собой тектоническую систему, которая соперничала бы с основным каркасом купола на арках. Благодаря несовпадению осей колонн образована более оживленная архитектурная композиция. Вместе с тем несоответствие высоты и количества колонн в обоих ярусах создает впечатление большой общей стенной плоскости. Несмотря на то, что они ажурные, стены сохраняют свою цельность. Колонны выглядят как остатки первичной непрерывной стены. К сожалению, неизвестно, какую форму имели первоначально простенки под арками. Они были переделаны еще в византийское время. Различные исследователи реконструируют их по-разному, одни — более ажурными, другие — более глухими и компактными.

Внутренние стены среднего нефа распадаются на криволинейные в плане стены больших и малых экседр и на прямолинейные в плане стены под южной и северной арками и в середине западной части, где находятся три входных портала в центральный неф. Однако прямолинейные и криволинейные стены однородны и взаимно друг друга продолжают. Так, например, мотив двухъярусной аркады проходит насквозь через те и другие. Еще крепче прямолинейные и криволинейные стены привязаны друг к другу двумя горизонтальными мраморными прорезными карнизами, проходящими вокруг всего интерьера главной части, один на уровне пола хор, другой — на уровне основания сводов. Вследствие этого на образ линейного каркаса, о котором речь была выше, как бы наслаивается представление о сложном по плану, частично прямолинейном и частично криволинейном, легком ажурном ограждении среднего нефа со всех сторон. Это представление подкрепляется тем, что все поверхности стен до карниза, обозначающего основание сводов, покрыты великолепной мраморной облицовкой, контрастирующей с золотом мозаик сводов. В облицовке преобладают горизонтали, с которыми перекликается купольное кольцо.

Система стен разрывается только в одном месте — в алтарной апсиде. Дополнительный уступ и небольшое прямоугольное пространство перед апсидой усиливают в этом месте вертикали. Шесть окон апсиды расположены строго друг над другом по три в каждом ярусе. Образуется ряд вертикальных столбов с вертикалями двухъярусных проёмов между ними. Все это мощно выделяет алтарное помещение. Это единственное место, в котором имеются выходящие наружу оконные проёмы в стенах, ограждающих интерьер среднего нефа.

Три основных горизонтальных связующих пояса среднего нефа замечательно выявлялись при ночных богослужениях, когда на них ставили непрерывные ряды горевших плошек. Тогда интерьер опоясывали три великолепных огненных линии.

Характерна разная трактовка колонн в среднем и в боковых нефах. В боковых колонны выступают вперед и выглядят как окруженные пространственной средой архитектурные объёмы. В среднем нефе они расположены в самой плоскости стены и представляют собой как бы части стены, прорезанной проёмами.

Поверхности стен и сводов среднего нефа в принципе однородны. Прямые и криволинейные в плане стены, полукупола, паруса, купол и цилиндрический свод над входом — все это части единой поверхности, тонкой и невесомой геометрической оболочкой, охватывающей внутреннее пространство среднего нефа и придающей ему довольно сложную, но в целом ясную форму. В противоположность боковым нефам пространство среднего нефа отчетливо очерчено охватывающей его оболочкой стен и сводов.

Решение масштаба различно в среднем и в боковых нефах. В центральном нефе роль колонн иная, чем в боковых нефах. Колонны боковых стен и экседр среднего нефа только с близкого расстояния воспринимаются в их реальном масштабе. При выходе из центральной части здания они образуют переход к боковому нефу с его масштабом человеческого тела. Полуарки и более низкие колонны, на которые они опираются, образуют дальнейший переход к масштабу бокового нефа. Внутри среднего нефа при удалении от колоннад, когда глаз охватывает весь грандиозный центральный интерьер в целом, колонны не воспринимаются как объемы: они зрительно включаются в стену, подчиняются ей и входят в нее как ее составные части, не имеющие самостоятельного значения. Колонны боковых аркад несоизмеримы с интерьером среднего нефа, взятым в целом. Этот интерьер несоизмерим с фигурой входящего в него человека. Он ему противостоит и его подавляет.

Средний неф величествен и грандиозен. Он изображает и одновременно символизирует вселенную, как место, в котором развертывается театрализованная история мира в интерпретации византийского культа.

Первоначальный облик среднего нефа был несколько иным, так как купол был более плоским. Даже в современном виде купол Софии напоминает небосвод. Когда попадаешь на юг, ясное ночное небо, усеянное звездами, своей кажущейся выпуклостью вызывает в памяти купол Софии Константинопольской. Первоначальный более плоский купол должен был еще живее напоминать реальный небосвод. Сорок близко поставленных друг к другу окон в основании купола делают его особенно легким и воздушным. Струящийся из них свет обильно льётся в интерьер и зрительно еще больше облегчает тонкие простенки между окнами.

В настоящее время трудно себе представить достаточно образно освещение первоначальной Софии. Она и теперь пронизана светом, но когда не были замурованы многие оконные проёмы боковых нефов, что произошло в результате турецких пристроек, из окон наружных стен света проникало внутрь гораздо больше. Из первоначальных более крупных проемов под северной и южной подкупольными арками должны были литься, в особенности с южной стороны, обильные потоки света. Все архитектурные формы среднего нефа были первоначально гораздо больше овеяны светом. Это делало их еще более легкими и воздушными, зрительно уменьшая их объём.

Связь друг с другом трех нефов Константинопольской Софии основана на том, что главные точки зрения на интерьер открываются из боковых нефов, предназначенных для зрителей, присутствующих при богослужебных церемониях. При взгляде на центральное пространство с самых различных мест боковых нефов перед зрителем развертываются наиболее насыщенные и богатые перспективы. Колоннады, отделяющие нефы друг от друга, образуют прозрачную преграду, за которой видны в различных ракурсах экседры и купола. Линейный костяк среднего нефа, прямые и вогнутые поверхности стен и сводов, залитые светом ажурные аркады, мрамор облицовок, золото мозаик, резьба по мрамору карнизов и аркад — все это зрительное богатство соединяется в необыкновенно разнообразную, стройную и гармоничную архитектурную симфонию. Живописные формы самого бокового нефа служат первым планом, с которым контрастирует и который очень эффектно дополняют архитектурные формы центральной части. При осмотре в отдельности одного бокового нефа или одного среднего нефа Софии не создается той необыкновенной полноты и насыщенности архитектурного образа, которая поражает при созерцании центральной части из боковых помещений.

Наибольшего богатства и насыщенности облик Софии достигает при движении по интерьерам боковых нефов. В результате этого движения все формы начинают сдвигаться и непрерывно вступают в новые сочетания друг с другом. Архитектурная картина, статичная при взгляде с одной только точки, при движении оживает и переходит в непрестанную смену многообразных перспектив, в непрерывную их последовательность.

Архитектура Софии эффектна при восприятии ее в процессе движения внутри здания. Ее архитектурная форма построена как функция движения человека. Своеобразная динамичная картинность, реально развертывающаяся во времени, возможна только в архитектуре. Она коренным образом отличается от картинности в живописи. Некоторое представление об этой стороне Константинопольской Софии, и то очень приблизительное, можно было бы дать только при помощи киноаппарата. Этот аспект архитектуры впервые в развитии мирового зодчества получил преобладающее значение в Софии в Константинополе.

Очень существен новый метод перехода в Софии от квадрата плана к окружности купола — применение парусов. Они родственны по своим очертаниям полукуполам, что делает понятным применение полукуполов и парусов в большом масштабе в одном и том же здании. Благодаря парусам достигнута та плавность перехода от прямоугольной нижней части центрального нефа к окружности купола, которая так соответствует ритму экседр.

Как и в отношении многих других элементов позднеантичной и ранневизантийской архитектуры, археологически ориентированные исследователи производили неоднократные изыскания по вопросу о том, где и когда впервые появились паруса. Уже давно было указано несколько более ран них случаев их применения, чем в Софии Константинопольской. Однако эти примеры относятся к постройкам очень небольших размеров и крайне незначительным в архитектурном отношении. Примеры более раннего, чем в Софии, применения парусов (следует думать, что в дальнейшем количество их будет значительно умножено) говорят лишь о том, что Анфимий и Исидор имели предшественников. Однако за ними остается заслуга первого применения Парусов в грандиозном масштабе и, главное, замечательно глубокое осмысление этого одновременно конструктивного и художественного приёма. В Софии паруса настолько связаны с общей композицией здания, что на их месте невозможно представить себе какое-либо другое решение.

Наоборот, у предшественников Софии паруса имели скорее случайный характер. Именно София послужила началом самого широкого применения этого приема в византийской архитектуре, а также под влиянием византийских памятников в архитектуре Западной Европы в средние века и эпоху Возрождения (начиная с Брунеллеско) и Восточной Европы, в особенности в русской архитектуре. Грандиозная София стояла у всех на глазах, и влияние ее на мировую архитектуру продолжалось вплоть до новейшего времени.

Византийские паруса сменили собой более старый прием перехода от квадрата плана к окружности купола — тромпы. Основным принципиальным конструктивным и художественным отличием парусов от тромпов является органическая связь парусов с каркасной конструктивной системой в противоположность тромпам, связанным со стеновой конструкцией. Тромпы представляют собой сводики в форме половинок конуса, перекинутые через углы квадратной в плане постройки, образованной четырьмя глухими стенами. Наоборот, паруса представляют собой заполнение между двумя подкупольными арками. Смысл парусов состоит именно в том, что они образуют опору для купола в промежутке между двумя арками.

Бывали случаи применения парусов при увенчании четырех стен куполом и обратные случаи применения тромпов над опирающимися на столбы арками. Однако эти случаи свидетельствуют лишь о перенесении тромпов и парусов в конструктивные условия, с которыми у них нет внутренней органической связи. Поэтому в случаях применения парусов при четырех глухих стенах, как, например, в капелле Пацци или в ризнице Сан Лоренцо, на стенах под парусами образуются декоративные арки. В случаях применения тромпов над четырьмя подкупольными арками они обычно, например в малоазийской купольной базилике в Сиври-Хиссар, опираются не на арки, а на стены, которые эти арки несут.

Очень выразительна архитектура нартекса Константинопольской Софии. Эксонартекса первоначально не существовало, его устроили позднее в одном из портиков атриума. До этого в нартекс входили непосредственно из атриума. Нартекс перекрыт, как боковые нефы, рядом крестовых сводов. Как и внутри всех нефов, его стены и столбы украшены мраморной облицовкой, а своды покрыты мозаикой. Наиболее характерно различие в трактовке западной и восточной внутренних стен нартекса. С запада нартекс ограничен рядом столбов, подчёркивающих входные проемы и как бы разбивающих на группы входящих в храм из атриума. По контрасту с этим восточная стена нартекса представляет собой покрытую обычной для Софии облицовкой архитектурную плоскость, напоминающую занавес. Это преграда перед входом в главную часть, закрывающая интерьер последней. На её фоне эффектно вырисовываются порталы. В торцах нартекса имеются дополнительные входы, через которые можно было пройти также и на лестницы, ведущие на хоры.

Общему характеру архитектуры Софии соответствовало во времена Юстиниана I отсутствие изобразительных элементов в её мозаиках. Все они представляли собой золотые поверхности, обрамленные легким растительным орнаментом. В середине сводов обычно находились небольшие кресты красного цвета. В парусах под куполами были изображены фантастические фигуры серафимов — бесплотных существ, у которых человекоподобные головы как бы вырастают из крыльев. Эти изображения удачно вписаны в очертания паруса и подчеркивают динамичность и воздушность архитектурных форм.

Богословская идея, положенная в основу построения собора Анфимия и Исидора, заключалась в том, что он давал образ высшего христианского божества. Это была попытка изобразить то, что с церковной точки зрения является неизобразимым. Даже в самом названии храма нет понятия «бога-отца» как высшего начала «троицы», лежащей в основе христианской догмы. Название касается только одного из свойств этого высшего божества, а именно его премудрости — «софии».

Константинополь. Церковь Ирины, 532 г., перестроена в VI—VIII вв.: южный фасад, план нижнего этажа, план на уровне хор, продольный разрез
26. Константинополь. Церковь Ирины, 532 г., перестроена в VI—VIII вв.: южный фасад, план нижнего этажа, план на уровне хор, продольный разрез
Константинополь. Церковь Ирины. Первоначальный двойной проем окна
27. Константинополь. Церковь Ирины. Первоначальный двойной проем окна

Недалеко от Софии, к северу от нее, стоит другой памятник ранневизантийской архитектуры Константинополя — церковь Ирины (рис. 26 и 27), построенная одновременно с Софией. Она сгорела в 564 г., после чего ее перестроили, а в 740 г. она была довольно сильно повреждена во время землетрясения и еще раз перестроена. В своем первоначальном виде церковь Ирины была купольной базиликой, близкой к прототипам Константинопольской Софии. Она дает наглядное представление о той разнице, которая существует между купольными базиликами, предшествующими Софии, и замечательным созданием Анфимия и Исидора. Церковь Ирины в первоначальном виде далеко не была такой пространственной и воздушной, как София. Ее наружный объем тяжеловат, преобладают массивные стены, проемы относительно невелики. Очень характерно сохранившееся от первого строительного периода окно в восточной части северной стены, разделенное пополам массивным столбом. На него опираются арки двух проёмов, объединенные крупной аркой. Крестовокупольная система в церкви Ирины появилась в результате более поздних перестроек.

Собор Софии и церковь Ирины образовали вместе архитектурный ансамбль. Однако мы не можем представить его себе достаточно полно, так как не исследована промежуточная застройка между двумя зданиями. Можно отметить только, что обе постройки поставлены параллельно друг другу, но с некоторым отклонением осей.

Планы церквей Апостолов в Константинополе (реконструкция Сотириу) и Иоанна в Эфесе, VI в.
28. Планы церквей Апостолов в Константинополе (реконструкция Сотириу) и Иоанна в Эфесе, VI в.
О. Парос. Церковь Панагии Гекатомпилиани, VI—VII вв. Аксонометрический разрез
29. О. Парос. Церковь Панагии Гекатомпилиани, VI—VII вв. Аксонометрический разрез

На высоком холме в центре Константинополя стояла вторая по величине и значению церковь столицы — церковь Апостолов (рис. 28), построенная при Юстиниане. Сохранились довольно подробные описания ее в литературных источниках. Ей посвящены многочисленные, в том числе и весьма капитальные, исследования. Однако невозможно достаточно конкретно представить себе ее архитектуру. Мы знаем, что пять куполов были расположены крестообразно по странам света. В самых общих чертах церковь Апостолов была подобна церкви Иоанна в Эфесе VI в. (рис. 28), а также, в некоторых только отношениях, собору Сан Марко в Венеции. Однако Сан Марко явился существенной переработкой системы церкви Апостолов, переведенной на язык эпохи и превращенной в сложную крестовокупольную постройку. Эфесская церковь до нас не дошла, лишь фундаменты ее и отчасти основания стен были открыты при раскопках. Отражением и переработкой архитектуры церкви Апостолов является также композиция церкви Гекатомпилиани на о. Паросе (рис. 29).

Церковь Апостолов не была крестовокупольной постройкой и примыкала к купольным базиликам — ведущему архитектурному типу той эпохи. Можно до некоторой степени представить себе в самых общих чертах облик церкви Апостолов, если взять за основу Сан Марко и заменить его крестовокупольные ячейки купольнобазиличными. Для этого необходимо перекрыть все помещения, окружающие центральную группу пяти куполов, по образцу Софии в Константинополе. Все концы креста должны быть перекрыты крестовыми сводами, вследствие чего исчезнут крестообразные интерьеры. Своды будут, как в Софии, достигать только основания больших подкупольных арок; над ними откроются большие полуциркульные оконные проёмы, которые будут непосредственно освещать пространства над куполами.

Церковь Апостолов была большим храмом рядом с императорской гробницей, тоже до нас не дошедшей. Ее алтарь находился в середине здания, под центральным куполом. На соответствующем месте с Сан Марко имеется пустой квадрат мраморного пола, контрастирующий с богато украшенным полом под другими куполами. Крестообразный план церкви Апостолов и расположение алтаря в середине повторяют особенности мартириев более раннего периода, что объясняется погребальным характером сооружения. Мозаики в церкви Апостолов уже в ранневизантийский период изображали многофигурные сцены из священного писания. Это лишний раз показывает, насколько своеобразными были архитектура и живопись Софии.

Возможно, что церковь Апостолов была третьей постройкой в Константинополе строителей Софии Анфимия и Исидора. Проверить это невозможно, однако такое предположение является вероятным.

Византийские «цистерны»: 1 — Бин-Бир-Дирек в Константинополе (план, разрез, свод, детали колонны); 2— «цистерна» на о. Хиос (план и разрез); 3 — «цистерна» в Александрии (план и разрез); 4 — «цистерна» около Чукур бостана мечети султана Селима в Константинополе (план, фасад, разрез); 5 — «цистерна» около монастыря Пантократора в Константинополе (план и разрез)
30. Византийские «цистерны»: 1 — Бин-Бир-Дирек в Константинополе (план, разрез, свод, детали колонны); 2— «цистерна» на о. Хиос (план и разрез); 3 — «цистерна» в Александрии (план и разрез); 4 — «цистерна» около Чукур бостана мечети султана Селима в Константинополе (план, фасад, разрез); 5 — «цистерна» около монастыря Пантократора в Константинополе (план и разрез)

В V—VII вв. получил свое завершение архитектурный тип утилитарных построек различного назначения (мастерская, складочное помещение, резервуар для воды), просуществовавший в дальнейшем до падения Византии. Обычно подобные сооружения условно называют цистернами. Их сохранилось очень много, особенно в Константинополе, но также и в других городах и в монастырях. Все они однородны и отличаются друг от друга главным образом по занимаемой площади, по конфигурации плана, всегда простого прямоугольника, и по высоте, доходящей до трех ярусов колонн, последовательно соединенных друг с другом арками. На рис. 30 сопоставлены различные варианты. Некоторые из них имеют выходящие наружу окна и ведущие вниз внутренние лестницы, примыкающие к дверным проёмам. Особенно велико здание такого типа Бин-Бир-Дирек («тысяча и одна колонна») в Константинополе. Конструктивная задача, стоявшая перед зодчими подобных зданий, состояла в том, чтобы перекрыть обширные помещения сводами с небольшими пролетами при помощи системы свободно стоящих опор. В этом отношении цистерны подготовили возникновение средневизантийского крестовокупольного здания.

Изучение ранневизантийской архитектуры Константинополя показывает, что собор Софии занимает в ней, как и во всей византийской архитектуре, совершенно исключительное место. Было бы неверным считать, что повторений Софии не было потому, что София была случайным явлением в истории византийского зодчества. Она не могла быть повторена потому, что не могло повториться задание построить главную церковь Византийской империи. Именно как здание, отвечавшее этому заданию и необыкновенно полно отразившее византийское мировоззрение, византийскую государственность и принципы византийского искусства, София в Константинополе представляет собой наиболее характерное произведение всего византийского зодчества. Произведения, особенно полно отразившие свою эпоху и мировоззрение породившей их культуры и народа и тем не менее оставшиеся неповторёнными, возникали также и в другие эпохи. Таков, например, Покровский собор (Василий Блаженный) в Москве.

Что же касается отдельных элементов Константинопольской Софии, например парусов, внутренней мраморной облицовки стен, закомар и многих других, то они оказали очень большое влияние как на византийскую архитектуру последующего времени, так и на зодчество других стран.

Особенно существенно, что София послужила в известном смысле отправной точкой развития столичного варианта крестовокупольной системы последующего времени. Она и в этом отношении является глубоко закономерным и необходимым звеном развития византийской и всей мировой архитектуры.

Добавить комментарий

CAPTCHA
Этот вопрос задается для предотвращения попыток автоматической регистрации